【產品名稱】:CF(VSSJAFG)單法蘭傳力接頭(CF單法蘭松套傳力補償接頭)
【產品別名】:單法蘭傳力接頭
【產品規格】:【DN32mm-DN4000mm】
【產品壓力】:0.6-2.5MPa
【產品認證】:ISO9001-2008
【適用范圍】:【弱酸、弱堿、弱腐蝕類、油、熱水、冷水等】
【產品材質】:碳鋼,球墨鑄鐵,不銹鋼.
【產品顏色】:藍色,可根據客戶要求調色.
【工作溫度】:-40度至80度
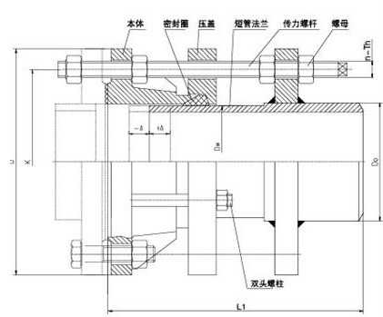
產品介紹: CF(VSSJAFG)單法蘭傳力接頭是有松套伸縮接頭和短管法蘭、傳力螺桿等構件組成,它是泵、閥門等設備與管道連接的新產品,通過全螺栓把它們連接起來,使其成為一個整體,并有一定的調節量,這樣就可以在安裝維修時,根據現場安裝尺寸進行調整,在工作時,可以把軸向推力傳還至整個管道。這樣不僅提高工作效率,并且對泵、閥門和管道等起到一定保護作用。
產品優勢: 1、安裝簡單方便、方便閥門安裝、可承受管線的軸向推力。
2、該產品采用金屬鑄造或焊接組成,松套部位選用梯形橡膠密封圈,在壓蓋和螺栓的作用下利用橡膠壓縮彈性變形原理。迫使密封圈變形于接頭本體伸縮管外壁之間進行靜密封。金屬和密封圈嚴格按使用性能及用戶要求選用。材質外部涂裝高強度防腐漆料,各部連接螺栓為高強度碳鋼或不銹鋼制作。
3、在管道中能有效的補償和緩解管道和盲板推力,又能便于水泵,閥門的安裝維修更換,實為管道安裝運行業中為理想的配套產品。
產品特點: 1安裝簡單方便,有利于泵閥的拆裝與維護。
2使用壽命長,運行穩定。
3能夠將管道的軸向推力反傳至整條管道,避免局部受壓。
產品示意圖:
技術參數:
|
公稱通徑 Nominal Diameter DN |
管子外徑 External diameter of pipe |
外形尺寸 Length |
法蘭連接尺寸Flange connecting dimension
|
|||||||||
|
0.6Mpa
|
1.0Mpa
|
|||||||||||
|
Dw
|
do
|
L
|
1
|
D
|
D1
|
n-Th
|
b
|
D
|
D1
|
n-Th
|
b | |
|
65
|
76
|
76
|
400
|
40
|
160
|
130
|
4-M12
|
16
|
185
|
145
|
4-M16
|
20 |
|
80
|
89
|
89
|
190
|
150
|
4-M16
|
18
|
200
|
160
|
8-M16
|
22 | ||
|
100
|
114
|
114
|
210
|
170
|
220
|
180
|
24 | |||||
|
125
|
140
|
140
|
240
|
200
|
8-M16
|
20
|
250
|
210
|
26 | |||
|
150
|
168
|
168
|
265
|
225
|
285
|
240
|
8-M20
|
|||||
|
200
|
219
|
219
|
320
|
280
|
22
|
340
|
295
|
28 | ||||
|
250
|
273
|
273
|
375
|
335
|
12-M16
|
24
|
395
|
350
|
12-M20
|
|||
|
300
|
325
|
325
|
420
|
50
|
440
|
395
|
12-M20
|
24
|
445
|
400
|
12-M20
|
28 |
|
350
|
377
|
377
|
490
|
445
|
26
|
505
|
460
|
16-M20
|
30 | |||
|
40
|
426
|
426
|
540
|
495
|
12-M20
|
28
|
565
|
515
|
16-M24
|
32 | ||
|
450
|
480
|
480
|
595
|
550
|
28
|
615
|
565
|
20-M24
|
32 | |||
|
530
|
530
|
530
|
645
|
600
|
20-M20
|
30
|
670
|
620
|
34 | |||
|
600
|
630
|
630
|
440
|
755
|
705
|
20-M24
|
30
|
780
|
725
|
20-M27
|
36 | |
|
700
|
720
|
720
|
860
|
810
|
24-M24
|
32
|
895
|
840
|
24-M27
|
40 | ||
|
800
|
820
|
826
|
600
|
60
|
975
|
920
|
24-M27
|
34
|
1015
|
950
|
24-M30
|
44 |
|
900
|
920
|
926
|
1075
|
1020
|
24-M27
|
36
|
1115
|
1050
|
28-M30
|
46 | ||
|
1000
|
1020
|
1026
|
1175
|
1120
|
28-M27
|
36
|
1230
|
1160
|
28-M33
|
50 | ||
|
1200
|
1220
|
1226
|
620
|
1405
|
1340
|
32-M30
|
40
|
1455
|
1380
|
32-M36
|
56 | |
|
1400
|
1420
|
1428
|
1630
|
1560
|
36-M33
|
44
|
1675
|
1590
|
36-M39
|
62 | ||
|
1600
|
1620
|
1628
|
|
1830
|
1760
|
40-M33
|
48
|
1915
|
1820
|
40-M45
|
68 | |
|
1800
|
1820
|
1828
|
2045
|
1970
|
44-M36
|
50
|
2115
|
2020
|
44-M45
|
70 | ||
|
2000
|
2020
|
2030
|
650
|
2265
|
2180
|
48-M39
|
54
|
2325
|
2230
|
48-M45
|
74 | |
|
2200
|
2220
|
2230
|
2475
|
2390
|
52-M39
|
60
|
2550
|
2440
|
52-M52
|
80 | ||
|
2400
|
2420
|
2430
|
2685
|
2600
|
56-M39
|
62
|
2760
|
2650
|
56-M52
|
82 | ||
|
2600
|
2620
|
2630
|
750
|
80
|
2905
|
2810
|
60-M45
|
64
|
2960
|
2850
|
60-M52
|
88 |
|
2800
|
2820
|
2830
|
3115
|
3020
|
64-M45
|
68
|
3180
|
3070
|
64-M52
|
94 | ||
|
3000
|
3020
|
3030
|
3315
|
3220
|
68-M45
|
70
|
3405
|
3290
|
68-M56
|
100
|
||
|
3200
|
3220
|
3230
|
3525
|
3430
|
72-M45
|
76
|
|
|
|
|
||






